HOME>WESTERN PA>KLONDIKE COALFIELD>MATHER
MATHER, PA
Mather Colliery was a captive mine built in 1917 by Picklands, Mather & Co.to supply coal
to their coke ovens in Toledo, Cleveland, and Canton, Ohio. The Mather coal mine closed in 1964 or 1965.
On May 19, 1928 an explosion in the Mather mine killed 195 miners, one of the worst coal mine
disasters of all time. It happened at 4:07 in the afternoon during a shift change. There were 270 men in the mine at the time, and
193 of them were killed in the explosion. 2 others died outside after being rescued. It was determined that the explosion was caused by
a pocket of gas being ignited by an arc from an electric underground locomotive.
Guy writes, "I spent all my growing up in Mather, from 1928 until I went into the service in 1946.
Father worked for the mining operation in Mather from 1926 or 27 until his retirement. Didn't work in the mine, was a engineer in the powerhouse.
In 1928 there was a explosion in the mine which took 195 lives, and my dad was in the mine rescue teams at that time and helped with the rescue operations. My mom used to tell us that they served pork chops to the rescue teams at one or two
times and my father wouldn't touch pork chops for years. Growing up in Mather was very nice. The community really was a tight knit group of people, with a wide group of nationalities represented. Many of the same families still live there and some have actually moved back to Mather from other places where they had relocated."
Mather, PA looks like a pleasant country hamlet, but is actually a coal company town that had some thought put into its construction and arrangement.
These homes on the main street through Mather could have been the "bosses row".
This apartment building in the middle of Mather is called the "Company Store Apartments." But
a gentleman that grew up at Mather told me it was actually an old furniture store. The actual company store was operated by the coal
company's Hamilton Supply Company subsidiary.
The company-built homes in Mather had electric lights, running water, and Sanisep indoor
toilets made by the Cement Products Company of Wilmington, N.C.
This building housed the recreation facility, drug store, movie theatre,
and library. Contrast this with the spartan H.C. Frick patches across the river in Fayette County.
The coal company built this clubhouse at Mather. Inside were living rooms, a dining
hall, bath rooms, a bowling alley, pool tables, a barber shop, and a dance hall.
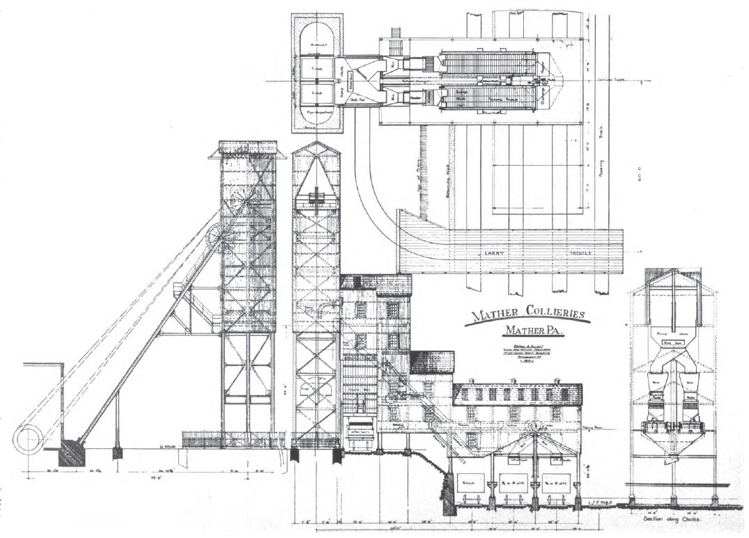
A more recent photo, this was probably the blending bins of the coal preparation plant at Mather.
Another historic mine structure at Mather, this is a remnant of the main prep plant. Mather No. 1 mine was in the Pittsburgh seam of
coal, which can be washed into coking coal in this vicinity.
This painting from when the Mather mine was active shows how a modern prep plant was built to the
left of the original tipple, and the blending bins were added on to the right side of the tipple.
The Mather prep plant / tipple circa 1930s.
The original Mather tipple and shaft frame before the concrete prep plant and blending
bins were added. There were two shafts at Mather - one for men and supplies and one
for coal - and they were both about 350 feet deep. This particular coal shaft was powered by a 1,000 horsepower Allis-Chalmers motor.
This building contained the lamp house, first aid room, and mine foreman's office.
In the background are the man shaft and fan house. In a May, 1920 article about Mather The Coal Industry wrote,
"All buildings in the mine as well as on the surface are well lighted by incandescent lamps. All employees in the mine, excepting the
officials, are supplied with Edison cap lamps, and a Burrel gas detector is kept by the mine officials for securing an approximate
analysis of the mine air." However, these safety precautions failed to protect the Mather miners on May 19, 1928. R.I.P.

Nov. 2002 image by author

Apr. 2009 image by author

Apr. 2009 image by author

Apr. 2009 image by author

Circa 1920 image from The Coal Industry via Google Books

Circa 1920 image from The Coal Industry via Google Books

Nov. 2002 image by author

Nov. 2002 image by author

Image painted by artist Howard Fogg

Image from "Coal Mine Mechaninzation Yearbook"

Circa 1920 image from The Coal Industry via Google Books

Circa 1920 image from The Coal Industry via Google Books

Circa 1920 image from The Coal Industry via Google Books